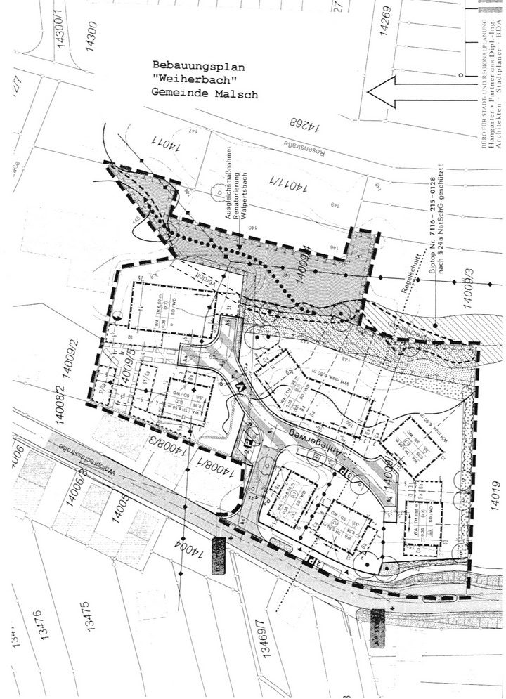
Gemeinde Malsch - Weiherbach

Bebauungsplan Weiherbach


zurück